Coney Island
Click on an image to enlarge and view description.
Images
Videos
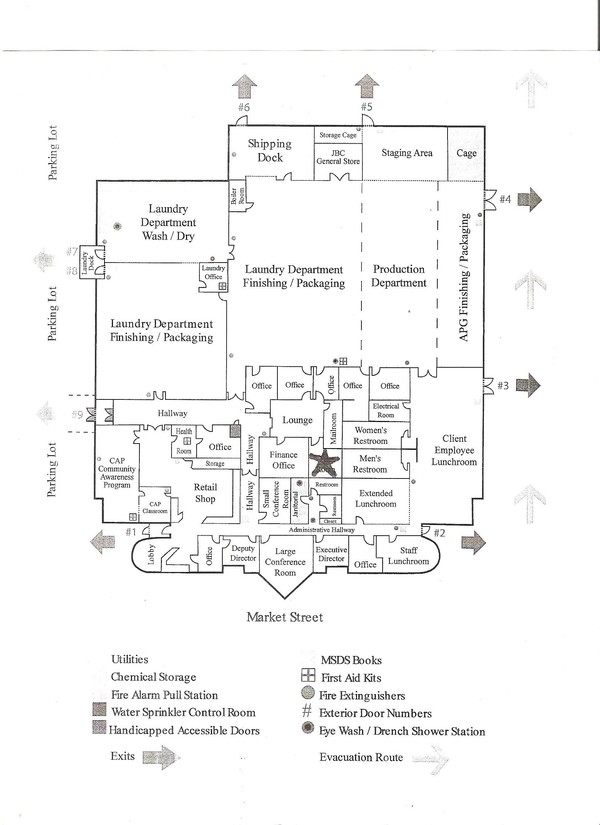
Jean Bussard Center
Click on an image to enlarge and view description.
Images
Frederick
Click on an image to enlarge and view description.
Images
There are currently no images for this location. Please check back later.
Annapolis
Click on an image to enlarge and view description.
Images
There are currently no images for this location. Please check back later.